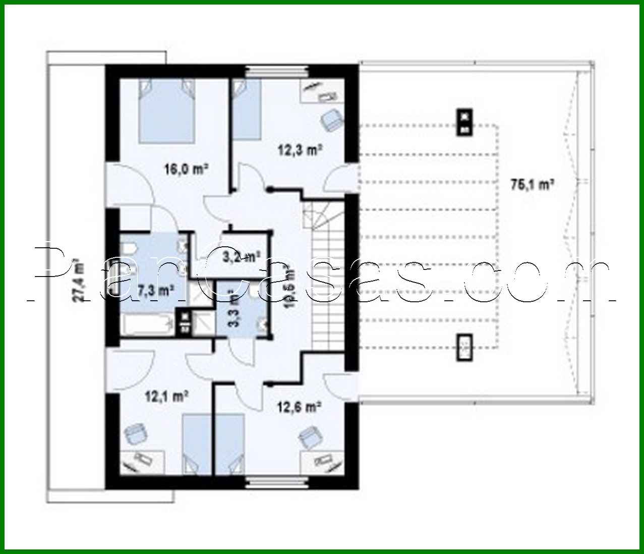
Project of a modern house with a terrace above the garage

226 m² total area / 2433 ft² 2 floors 4 bedrooms 3 bathrooms
Project of a modern house with a terrace above the garage
Click to view

Description

Project of a modern house with a terrace above the garage Number of floors: 2 Total area: 226.00 m2 Living Area: 178.00 m2 House height: 7.00 m Ceiling Height: 2.80 m Roof Angle: 6 ° Roof area: 99.00 m2 Cubic capacity: 677.00 m3 Number of bedrooms: 4 Number of bathrooms: 3 Garage: Garage for one car Minimum plot size (length): 22.00 m Minimum plot size (width): 21.00 m Materials: Walls: aerated concrete, ceramic blocks Overlap: monolithic overlap Roofing: PVC membrane Foundation: monolithic tape band

Interested in this plan?

Contact us to get full blueprints, construction estimate, or adapt this plan to your plot and needs.

Request more information

Visualization gallery