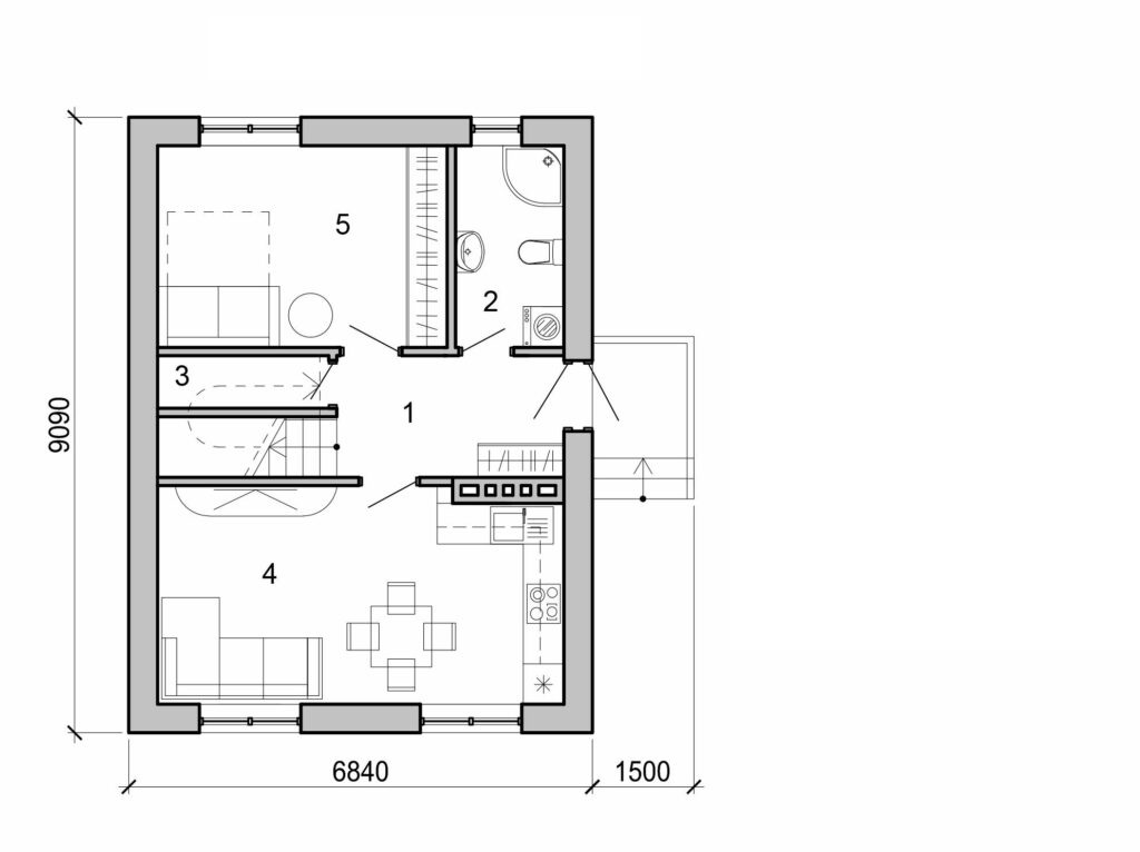
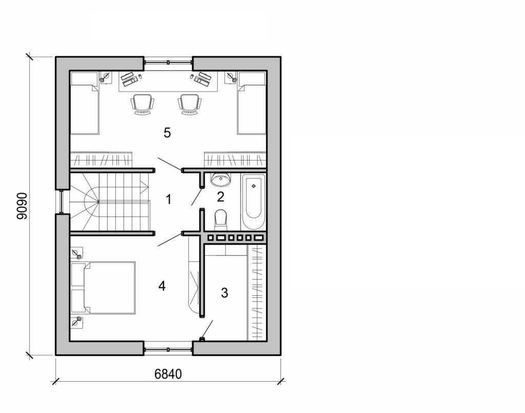
Simple 2 storey house

122 m² total area / 1313 ft² 2 floors bedrooms
Simple 2 storey house
Click to view

Description

10. Simple 2 storey house

Interested in this plan?

Contact us to get full blueprints, construction estimate, or adapt this plan to your plot and needs.

Request more information

Visualization gallery