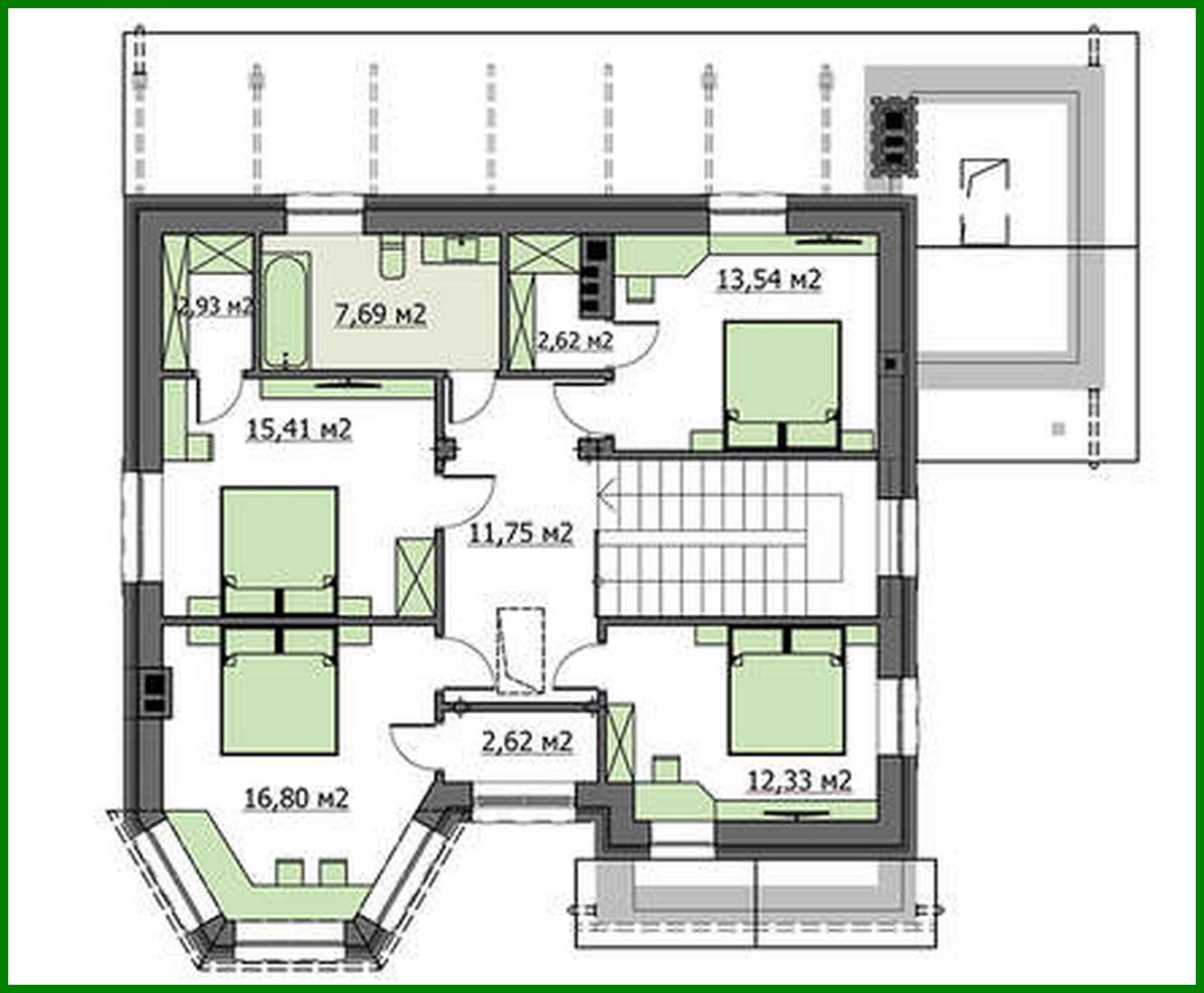
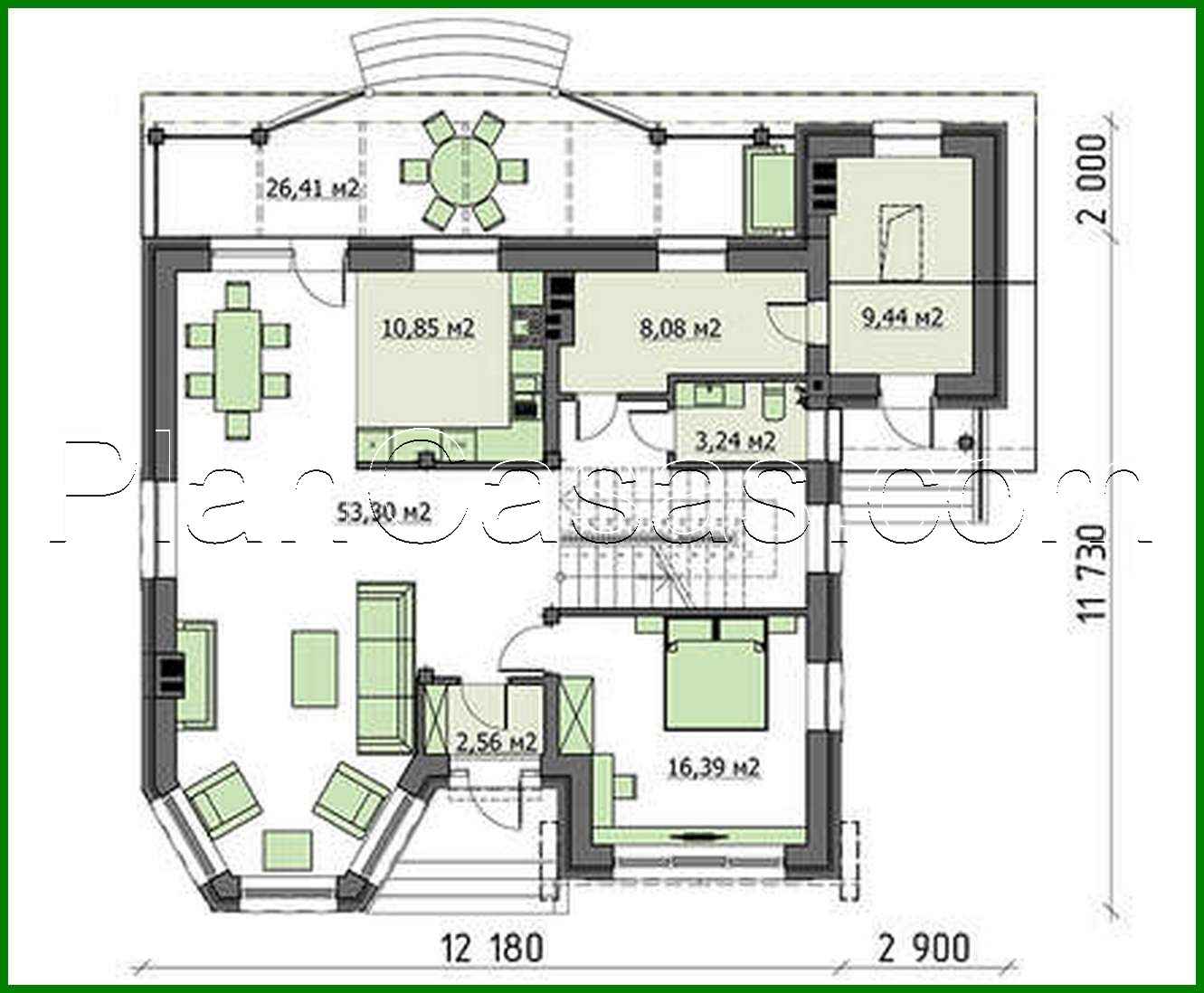
Proyecto de una mansión clásica de dos plantas con fachada de ladrillo

197 m² de área total / 2120 ft² 2 pisos 5 dormitorios 2 baños
Proyecto de una mansión clásica de dos plantas con fachada de ladrillo
Click to view

Descripción

The project of a classic two-story mansion with a brick facade Número de plantas: 2 Área total: 197.47 m2 Área habitable: 127.27 m2 Altura de la casa: 9.92 m Altura del techo: 2.80 m Ángulo del techo: 32/40 ° Área del techo: 230.20 m2 Número de dormitorios: 5 Número de baños: 2 Tamaño mínimo del terreno (largo): 22.00 m Tamaño mínimo del terreno (ancho): 24.00 m Área construida: 258.35 m2 Materiales: Paredes: brick Overlap: monolithic overlap Roofing: metal tile, ceramic tile, bitumen Foundation: monolithic tape

¿Te interesa este plano?

Contáctanos para obtener los planos completos, un presupuesto de construcción o adaptar este diseño a tu terreno y necesidades.

Solicitar más información

Galería de visualizaciones