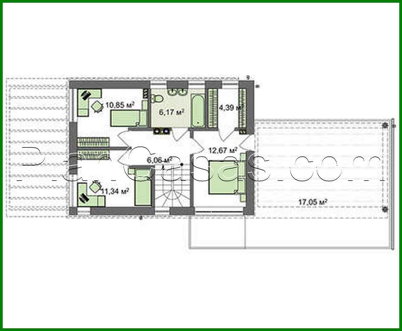
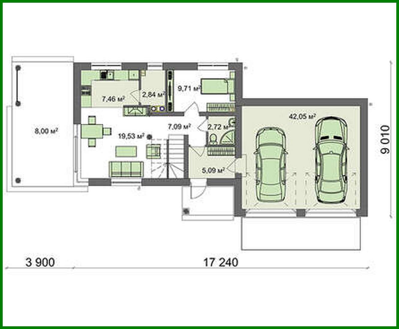
Proyecto de una casa de campo de dos plantas de 173 m² con terrazas abiertas en el primer y segundo nivel
173 m² de área total
/ 1862 ft²
2 pisos
4 dormitorios
2 baños
Click to view
‹
›
Descripción
The project of a two-story cottage with an area of 173 square meters. m with open terraces on the first and second level Número de plantas: 2 Área total: 173.02 m2 Área habitable: 64.10 m2 Altura de la casa: 7.02 m Altura del techo: 2.80 m Ángulo del techo: 2 ° Área del techo: 57.47 m2 Número de dormitorios: 4 Número de baños: 2 Garaje: Two-car garage Área construida: 161.4 m2 Materiales: Paredes: brick Overlap: floor slabs Roofing: PVC membrane Foundation: monolithic tape
¿Te interesa este plano?
Contáctanos para obtener los planos completos, un presupuesto de construcción o adaptar este diseño a tu terreno y necesidades.
Solicitar más informaciónGalería de visualizaciones