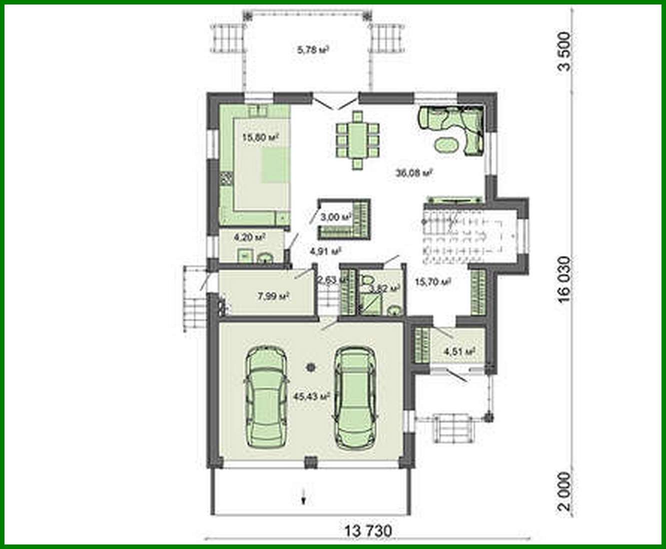
Plano de una mansión de dos plantas de 262 m² con garaje para dos vehículos

262 m² de área total / 2820 ft² 2 pisos 4 dormitorios 3 baños
Plano de una mansión de dos plantas de 262 m² con garaje para dos vehículos
Click to view

Descripción

Plan of a two-story mansion with an area of 262 sq.m with a garage for two vehicles Número de plantas: 2 Área total: 262.12 m2 Área habitable: 101.28 m2 Altura de la casa: 9.86 m Altura del techo: 2.80 m Ángulo del techo: 24/18 ° Área del techo: 331.00 m2 Número de dormitorios: 4 Número de baños: 3 Garaje: Two-car garage Tamaño mínimo del terreno (largo): 27.50 m Tamaño mínimo del terreno (ancho): 22.00 m Área construida: 233.6 m2 Materiales: Paredes: brick Overlap: floor slabs Roofing: ceramic tiles Foundation: Piles

¿Te interesa este plano?

Contáctanos para obtener los planos completos, un presupuesto de construcción o adaptar este diseño a tu terreno y necesidades.

Solicitar más información

Galería de visualizaciones