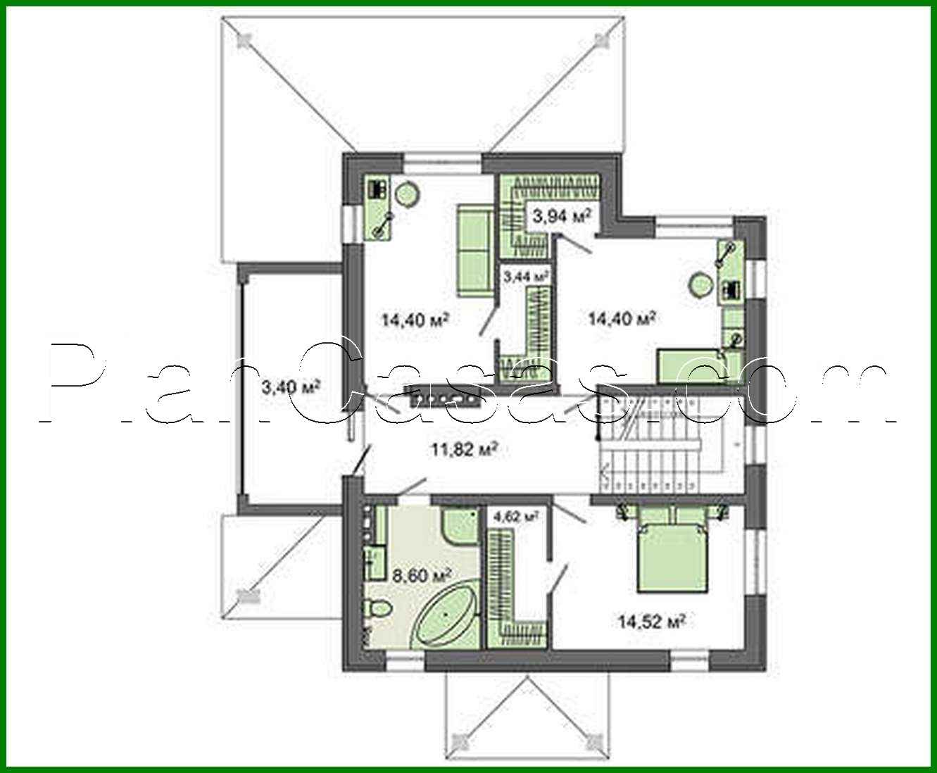
Proyecto de una casa de campo de dos plantas en diseño blanco y chocolate con un área total de 178 m²

178 m² de área total / 1916 ft² 2 pisos 4 dormitorios 2 baños
Proyecto de una casa de campo de dos plantas en diseño blanco y chocolate con un área total de 178 m²
Click to view

Descripción

Project of a two-story cottage in white and chocolate design with a total area of 178 square meters. m Número de plantas: 2 Área total: 178.31 m2 Área habitable: 90.14 m2 Altura de la casa: 9.34 m Altura del techo: 3.00 m Ángulo del techo: 22 ° Área del techo: 207.00 m2 Número de dormitorios: 4 Número de baños: 2 Tamaño mínimo del terreno (largo): 20.00 m Tamaño mínimo del terreno (ancho): 21.00 m Área construida: 167.3 m2 Materiales: Paredes: Aerated concrete blocks, brick Overlap: floor slabs Roofing: metal Foundation: monolithic tape

¿Te interesa este plano?

Contáctanos para obtener los planos completos, un presupuesto de construcción o adaptar este diseño a tu terreno y necesidades.

Solicitar más información

Galería de visualizaciones