Amplio edificio de apartamentos con ático de 3 dormitorios

152 m² de área total / 1636 ft² 1 piso 3 dormitorios 2 baños
Amplio edificio de apartamentos con ático de 3 dormitorios
Click to view

Descripción

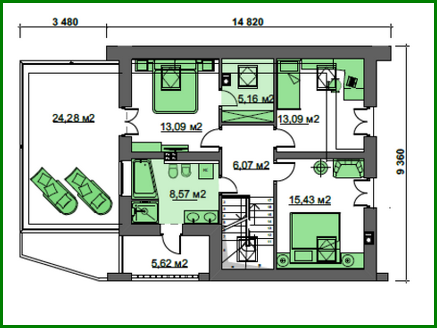
Spacious attic 4-bedroom apartment building Número de plantas: 2 Área total: 151.87 m2 Área habitable: 65.84 m2 Altura de la casa: 8.24 m Altura del techo: 2.80 m Ángulo del techo: 40 ° Área del techo: 125.58 m2 Número de dormitorios: 3 Número de baños: 2 Garaje: Garage for one car Tamaño mínimo del terreno (largo): 19.00 m Tamaño mínimo del terreno (ancho): 13.00 m Área construida: 143.25 m2 Materiales: Paredes: aerated concrete Overlap: monolithic overlap Roof: shingles Foundation: monolithic tape

¿Te interesa este plano?

Contáctanos para obtener los planos completos, un presupuesto de construcción o adaptar este diseño a tu terreno y necesidades.

Solicitar más información

Galería de visualizaciones