Proyecto de adosado de dos plantas

331 m² de área total / 3563 ft² 2 pisos 8 dormitorios 4 baños
Proyecto de adosado de dos plantas
Click to view

Descripción

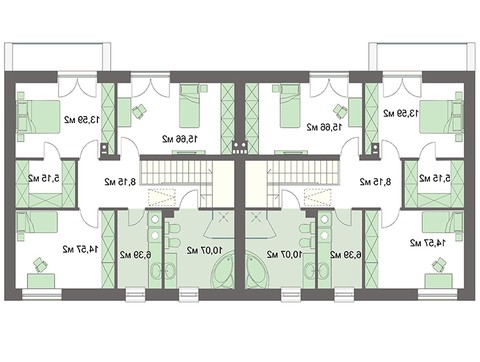
The project of a two-story townhouse Número de plantas: 2 Área total: 330.66 m2 Área habitable: 220.40 m2 Altura de la casa: 9.00 m Altura del techo: 2.80 m Ángulo del techo: 25 ° Número de dormitorios: 8 Número de baños: 4 Garaje: Two-car garage Tamaño mínimo del terreno (largo): 18.90 m Tamaño mínimo del terreno (ancho): 29.50 m Materiales: Paredes: aerated concrete, ceramic blocks Overlap: monolithic overlap Roofing: ceramic tile, metal tile, cement-sand tile Foundation: monolithic tape

¿Te interesa este plano?

Contáctanos para obtener los planos completos, un presupuesto de construcción o adaptar este diseño a tu terreno y necesidades.

Solicitar más información

Galería de visualizaciones